
從事室內設計的人,最期待也最怕受傷害的無非就是規劃設計自己的家了!00跟先生從交往就開始同居,目前住的是一間老屋,格局上是兩房兩廳一衛,我們一間是睡眠臥房,一間是更衣室,我們原本不打算再翻新這間中古老屋,而是計畫未來有小朋友後會搬去新家住,不過公公婆婆認為我們結婚後房子還是要整理一下,於是就有了這次的老屋翻新計畫!
【00design deta】
-30年中古老屋
-樓高280cm 總坪數24坪
-三房兩廳出租用
-預算100萬

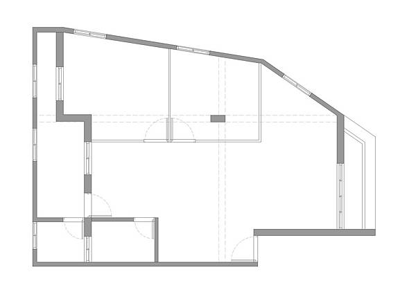
從平面圖可以看到老屋的格局浪費閒置了許多空間
甚至在房間裡還有一根柱子直立在中央
這再使用上來說對我們相當不方便
加上外型的斜邊使得室內規劃無法方正
這次的計畫主要目的是希望搬去新家後
舊家能具備繼續出租的條件
並且要比同區域租金多1.5倍
所以雖然我們只有兩個人住
在一切設計規劃會考慮以容易滿足出租的《三房兩廳》
用經濟實惠的材料做出最大的視覺效果
這樣子的條件也符合大多數的家庭型態
讓有考慮重新裝修或新婚夫妻的小家庭可以參考為期約6個月的系列文章
文章會分為三階段紀錄
【第一階段 規劃與設計】
【第二階段 施作與監工】
【第三階段 收尾與軟裝】
【第一階段 規劃與設計】
常常會有人問一定要找設計公司嗎?
我不否認委託設計公司絕對比較省時省力也有保障
但畢竟北部設計費用最少一坪4000元
是不是有方法可以了解自己需不需要依賴設計公司呢?
以下幾點是00整理出的評估表
符合2項以上,就會建議找設計公司幫你規劃
1/平均每天可以投注的時間低於一小時
2/完全不懂任何監工方法、或是完全沒有認識的工班
3/這個房子未來會自住超過10年
4/完美主義者,不能接受任何小瑕疵
5/閒置空間比例大於0.15
簡單來說如果我今天只是要出租,有閒又懂一點裝修
就可以嘗試自己監工省下預算
完美主義者的定義不是說要接受爛房子
而是監工現場一定會有許多突發狀況
自己監工有可能做錯、或是找的工班品質不佳
這時候只有打掉重做跟接受
所以沒辦法接受房子並不是那麼完美的
還是讓設計師去煩惱吧!
第5點的閒置空間,是要教大家一個平面規劃的方法
為什麼需要好的平面規劃,就是要將低閒置空間的產生
所謂閒置空間就是完全沒有任何機能、視覺上也不能整合的區域
例如封閉的走廊就是一個閒置空間,他既不能讓視野延伸也沒有任何機能
以我的案子為例

右邊原本的格局
紅色區域7.74坪是完全沒有任何機能的空間
放餐桌會擋到房間出入口,動線上也不順
但重新規劃後,只剩下走廊0.99坪是閒置的
而且同樣的坪數規劃後每個空間的竟然都變大
然後還憑空多出一個完整的房間
這也是為什麼我認為平面規劃要先做好才能做立面
畢竟土地寸寸是金,好不容易買了房子
總不希望買了30坪看起來跟20坪一樣大吧?
而閒置空間的比例公式
閒置空間坪數/總坪數
這個數值如果小於0.15
那表示這個平面規劃的坪效是利用得很好的
大於0.15就可以考慮有更好的配置
而平面規劃的技巧這就要靠經驗累積跟練習了
包括需要了解每個東西的尺寸大小(網路上都查得到)
完全沒接觸過的人
可以先逼自己至少想出三種完全不一樣的平面配置
再去比較不同之處慢慢練習
平面規劃做完之後就是立面了
自己規劃立面的技巧就是多看多找圖片
可以蒐集喜歡的風格圖片再用剪貼的方法
盡量拼貼出你想要的感覺
跟師傅溝通時都用圖片溝通、常跑工地確認做法、用現成的家具取代木工
(第三階段會教大家怎麼用軟裝規劃而不需要動工太多!!)
還有任何疑慮一定要向師傅提出或上網找出答案
以上就是第一階段的小技巧
祝大家都可以完成理想中的家!


